EVAC is closer than ever to having a real home.
- EVAC Media

- Dec 18, 2025
- 4 min read
Here is a year end update on where things stand with building a permanent home base for East Valley Athletes for Christ.
The land is secured
Able Purpose Ministries has officially purchased approximately five acres at 15303 S Gilbert Rd, Gilbert AZ 85298. The purchase was around $2.25 million and was paid mostly in cash. There is a small existing building on the property today, and the rest of the land is mostly undeveloped.
Able Purpose Ministries has hired their Executive Director, who starts January 2, 2026. Their plan is to begin programming in 2026 using the small building currently on the property, while also moving forward with a larger long term build out to serve even more families.
If you want to learn more about Able Purpose Ministries, you can visit their website here: https://ablepurpose.org/
The vision for shared use
The plan is for this land to become a shared use campus that serves multiple missions in a way that fits naturally into the weekly rhythm.
Able Purpose Ministries will use the campus for worship services, weekday programs, and quarterly events for adults with special needs.
Gilbert Bible Church will use the campus on weekends.
EVAC will use the facilities on weeknights.
This shared use plan is not just efficient. It is special. It is a picture of the Church and the community serving families from multiple angles while stewarding resources wisely.
Legal progress and agreements
Lease agreements and usage contracts have been drafted by attorneys and reviewed by Able Purpose Ministries, Gilbert Bible Church, and EVAC. These are expected to be finalized before the end of the year or in early 2026.
As part of the plan, approximately 1.65 acres will be sold to Gilbert Bible Church. The rest of the land and facilities will be built and owned by Able Purpose Ministries.
Why EVAC chose a long term lease instead of owning
The EVAC board intentionally decided that EVAC should not own facilities.
Here is why.
EVAC is an almost entirely volunteer run organization. Many volunteer roles are carried by a small number of parents, and most of those parents are only in those roles for a few years until their kids age out. Facility ownership adds a layer of ongoing operational responsibility that can easily become a liability in a model like that.
Instead, EVAC is pursuing a long term lease, likely 20 to 30 years, with several major benefits.
First, we get something we do not have today. We get defined days and times with exclusive rights to specific facilities.
Second, we get the ability to brand and design the space to feel like EVAC. That matters. It creates identity, consistency, and culture.
Third, the lease structure is designed to be a win for EVAC families. The lease is set at market rate, but any dollar EVAC helps raise toward the build out reduces the effective lease cost over time. The more we raise, the lower the long term facility costs become.
And that matters because facility rental costs are by far the biggest expense baked into player fees. Lower facility costs over time means lower player fees in the future.
Praise God for this part
EVAC already has one million dollars pledged.
That is a big deal.
To put it in simple terms, if market rate facility use would normally cost something like $100,000 per year, then one million dollars covers the equivalent of ten years of that cost. That is the kind of leverage that can change the future affordability of EVAC for families.
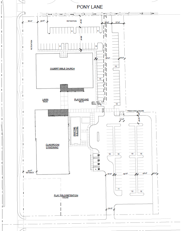
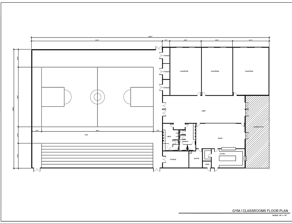
Where the project is at right now
An architect has been hired and a site plan has been created.


A meeting is scheduled with Maricopa County to work through approvals related to that site plan.
At the same time, the EVAC Building Committee, Able Purpose Ministries, and Gilbert Bible Church are working with a contractor and building supply partners to develop a clearer budget and estimated total cost.
Because of the funds already pledged by EVAC, combined with funds raised by Able Purpose Ministries, we have been able to officially begin the serious work of architecture, planning, zoning, and permitting.
What we are hoping for
Our hope is to begin construction sometime in 2026.
That will depend on two big things.
First, a smooth process with the County, the City, and the other groups involved in development approvals.
Second, continued fundraising.
Able Purpose Ministries is working hard to raise funds. The EVAC Building Committee is also working hard to raise funds. There are grant opportunities for youth sports and there are grant opportunities connected to special needs ministries. Combining those efforts should be fruitful, and we are actively pursuing them.
If you want to give or get involved
If you or someone you know would like to make a 2025 year end contribution to the EVAC facilities effort, you can give online here:
If you would prefer to donate by check or another method, or if you have ideas, relationships, or a desire to help with fundraising, please email: media@evacsports.org
Thank you for being part of EVAC. Thank you for praying. And thank you for believing that building a home for EVAC is worth doing.


